- Home
- Residential
- Apartment
- Powell Court Apartments – Power, WY
Powell Court Apartments – Power, WY
747, North Absaroka Street, Powell, Park County, Wyoming, 82435, United States
Description
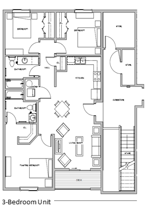
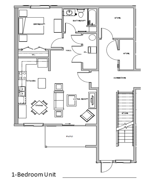
Powell Court Apartments are located at 821 N. Absaroka Street in Powell; a peaceful farming community located at the northern end of the scenic Big Horn Mountains. This All-American town is home to Northwest College. Well-maintained homes and yards make this a coveted place to reside. Each unit contains a washer/ dryer with an individual patio to kick back and enjoy the unfiltered beauty of Wyoming’s beautiful summer evenings.
Overview
- Apartment, Residential
- Property Type
- 1-3
- Bedrooms
- 1-2
- Bathrooms

